COURNON D'AUVERGNE | à louer BUREAUX 449.23 m²

Réf. : 63.0491
Secteur
Cournon
Divisibilité
Oui
Mini: 218.23 m²
Loyer / an
67384.5 Euros HT / an
Disponibilité
Immédiate

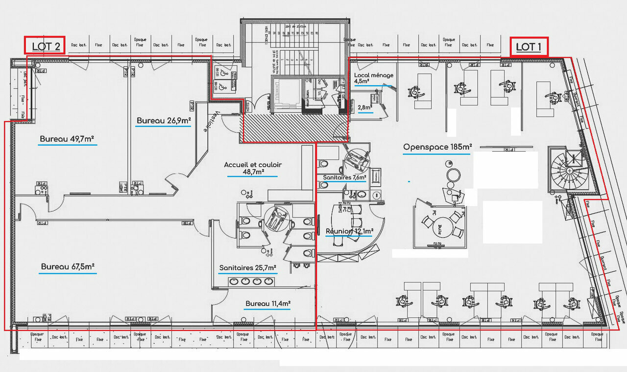
CIDERA² vous propose à la location un plateau de bureaux très qualitatif au Centre d'Affaires du Zénith à Cournon d'Auvergne, idéalement situé à proximité immédiate de l'A75 et des transports en commun. Ce bien peut être divisé en deux lots de 218 m² et 231 m², offrant ainsi une grande souplesse d'aménagement selon vos besoins.

Le plateau principal développe aujourd'hui un openspace d'environ 185 m², complété par 4 bureaux / salles de réunion d'environ 67 m², 50 m², 27 m² et 12 m², ainsi qu'un espace détente, des locaux de rangement, une salle serveur et des sanitaires. Climatisation réversible, fibre optique, accessibilité PMR et facilités de stationnement viennent renforcer le confort de ce plateau prêt à accueillir votre activité.

Batiment - LotTypeSurfaceLoyer annuelCharges annuellesTaxe foncière
Local 1 gauche Openspace et réunion218,33 m²32 734,50 euros HT6 414,54 euros3 487 euros HT
Local 2 doiteGrandes salles231 m²34 650 euros HT6 786,78 euros3 689 euros HT

Prestations

  • 2 entrées palières
  • Accès PMR
  • Ascenseur
  • Baie de Brassage
  • Borne(s) de recharge électrique véhicules
  • Câblage RJ45
  • Climatisation réversible
  • Cloisons amovibles
  • Cloisons fixes
  • Fibre optique
  • Issue de secours
  • Luminaires type LED faux-plafond
  • Moquette
  • Open Space
  • Parking Extérieur
  • Peinture
  • Placard(s)
  • Salle de réunion
  • Salle serveur climatisée
  • Sanitaire(s) PMR
  • Sanitaires privés
  • Sol plastique / Linoléum
  • Stores
  • Vidéophone

Informations générales

Accès - Desserte :
- Bus Grande Halle Zénith (296m) - Lignes : C - Train Sarliève - Cournon (407m) - Lignes : TER 80

Surfaces proposées :
Surface totale : 449.23m²

DPE GSE :
En cours de réalisation

Type de bail :
Commercial ou professionnel
3/6/9 ans

Prix

Loyer annuel:

67384.5 Euros HT / an (soit 150 €/m2)

Provisions sur charges annuelles :

13200 Euros NET / an

Taxe foncière indicative :

7175 €

Frais

Honoraires commercialisation :

15% HT du loyer annuel HT HC

Détail des tarifs : Les charges comprennent notamment l'eau et la consommation + l'entretien des climatisations réversibles.

Les informations sur les risques auxquels ce bien est exposé sont disponibles sur le site Géorisques.

Ce bien vous intéresse ? Contactez-nous !