CLERMONT FERRAND | à louer BUREAUX 124 m²

Réf. : 63.0398
Secteur
Le Brezet
Divisibilité
Non
Loyer / an
17360 Euros HT / an
Disponibilité
Immédiate

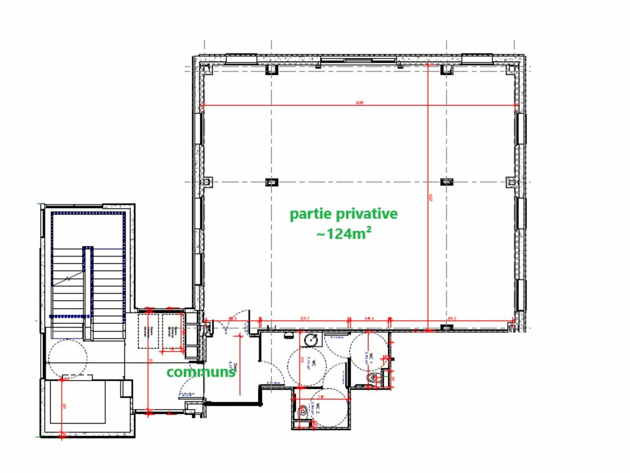
Cidera² Clermont vous propose à la location ce plateau de bureaux d'environ 124m² situé au 1er étage d'un immeuble indépendant.

Accessible aux personnes à mobilité réduite, ce plateau vous offrira la possibilité d'aménager l'espace selon vos besoins. Nous serons à vos côtés pour vous aider à faire de cet espace un lieu de travail fonctionnel et agréable.

Idéalement situé près des axes autoroutiers, le site dispose également d'un grand parking commun pour faciliter votre quotidien et celui de vos clients.

Saisissez cette occasion de façonner des bureaux à votre image, contactez-nous.

Prestations

  • Accès PMR
  • Ascenseur
  • Climatisation réversible
  • Contrôle d'accès
  • Faux plafond
  • Immeuble indépendant
  • Luminaires type LED faux-plafond
  • Open Space
  • Parking Extérieur
  • Peinture
  • Sanitaire(s) PMR communs
  • Sol plastique / Linoléum

Informations générales

Accès - Desserte :
Aéroport à 1,3km - 2 min en voiture - Bus Jean Mermoz (445m) - Lignes : 10, 20

Surfaces proposées :
Surface totale : 124m²

DPE GSE :
En cours de réalisation

Type de bail :
Commercial
3/6/9 ans

Prix

Loyer annuel:

17360 Euros HT / an (soit 140 €/m2)

Provisions sur charges annuelles :

1240 Euros HT / an

Taxe foncière indicative :

0 €

Frais

Honoraires commercialisation :

15% HT du loyer annuel HT HC

Détail des tarifs : Taxe foncière à la charge du Preneur. Frais de rédaction de bail notarié à prévoir.

Les informations sur les risques auxquels ce bien est exposé sont disponibles sur le site Géorisques.

Ce bien vous intéresse ? Contactez-nous !